PRZESIEWACZE WIBRACYJNE PWEW

PRZEZNACZENIE
Przesiewacze wibracyjne przeznaczone są do przesiewania masy formierskiej wybitej z form. Mogą być również stosowane do przesiewania materiałów formierskich w procesie przygotowania masy, jak również do innych materiałów sypkich o granulacji 0-80 mm wilgotności do 8%. Przesiewacze wibracyjne przewidziano do stosowania w zmechanizowanych stacjach przerobu mas lub innych liniach technologicznych. Wykonujemy przesiewacze o wydajności od 10-100 m3/h.
ZASADA DZIAŁANIA
Nadawa złożona z masy formierskiej podawana jest na drgające rzeszoto przesiewacza. Na skutek drgań cząsteczki masy - mniejsze od oczek sita - przepadają jako przesiew na rynnę zsypową, a pozostałość jako nadziarno przemieszcza się w kierunku zsypu rzeszota. Przesuwanie się nadawy wzdłuż sita oraz spływ nadziarna jego zesypem możliwy jest na skutek ukierunkowanego działania siły wymuszającej. Ruch drgający rzeszota wywołany jest przy pomocy elektrowibratora zamocowanego na jego konstrukcji.
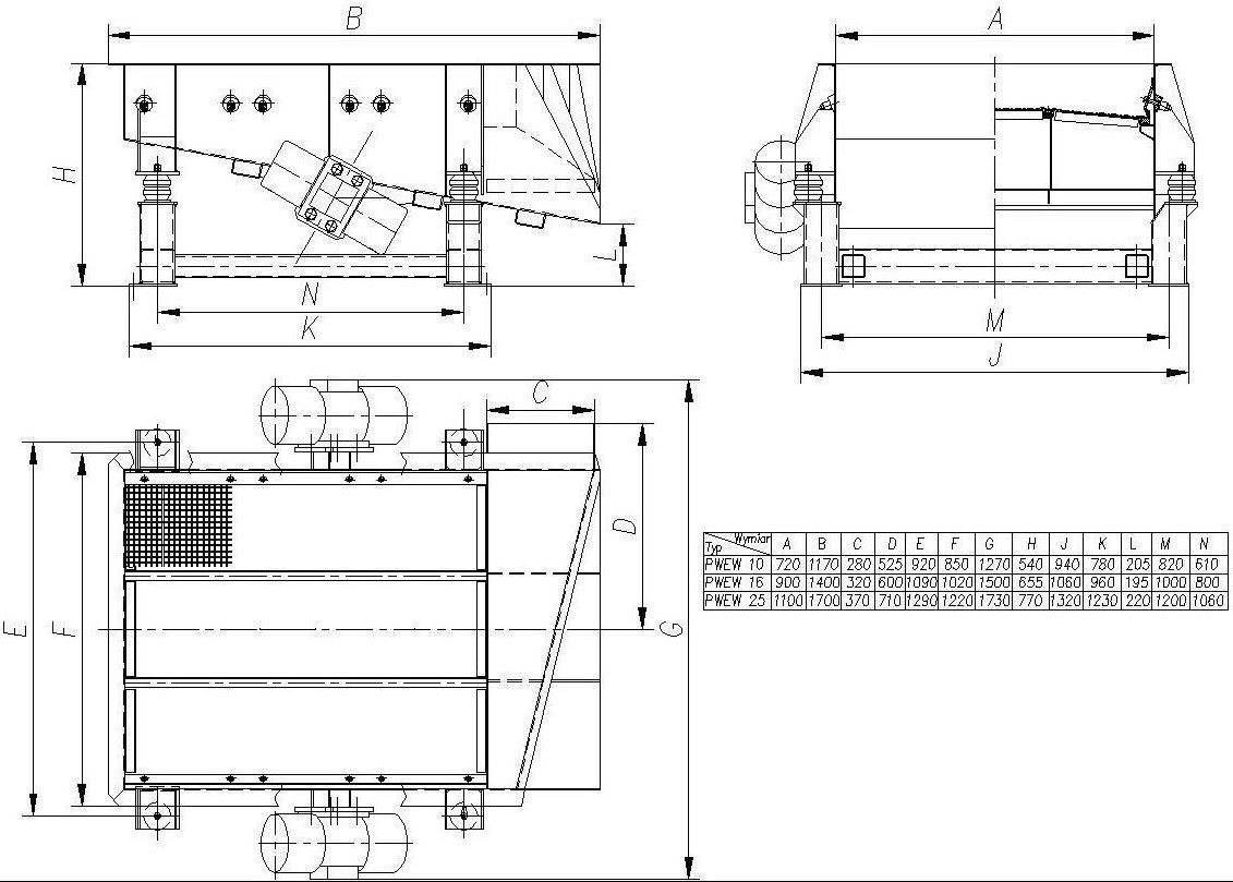
CHARAKTERYSTYKA TECHNICZNA
| Parametr | Jedn. miary | PWEW-10 | PWEW-16 | PWEW-25 | PWEW-40 | PWEW-60 | PWEW-100 | |||||
| Wydajność (przy wilgot. 2,2%) | m3/h | 10 | 16 | 25 | 40 | 60 | 100 | |||||
| Wymiary oczek sita | mm | 16 X 16 | ||||||||||
| Częstotliwość drgań sita | Hz | 16 | ||||||||||
| Amplituda drgań | mm | 3 | 3 | 3,5 | 3,5 | 3,5 | 3,5 | |||||
| Kąt działania siły wymuszaj. | stopień | 60 | ||||||||||
| Moc zainstalowana | kW | 2x 0,55 | 2x 0,55 | 2 X 0,75 | 2x 1,1 | 2x2,2 | ||||||
| Napięcie zasilania | V | 3 X 400/230 | ||||||||||
| Częstotliwość prądu | Hz | 50 | ||||||||||
| Wskaźnik oceny hałasu | - | poniżej krzywej N 85 | ||||||||||
| Masa | kg | 200 | 301 | 520 | 1080 | 1540 | 2360 | |||||