SZLIFIERKA DWUTARCZOWA SZD-400

PRZEZNACZENIE
Szlifierki dwutarczowe przeznaczone są do operacji wykańczających wykonanie odlewów i odkuwek, przez usuwanie szlifowaniem zalewek, pozostałości nadlewów i innych nierówności. Przy użyciu ściernic, odpowiedniego gatunku, szlifierka może być stosowana do odlewów żeliwnych, staliwnych lub z metali kolorowych.
ZASADA DZIAŁANIA
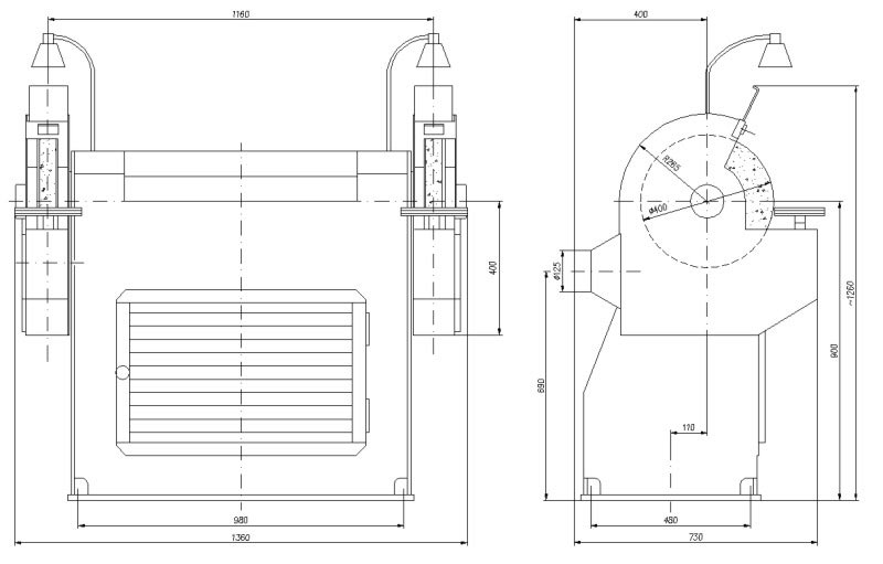
Dwie ściernice, umieszczone na końcach wałków, napędzane są od jednego silnika ( z dwiema końcówkami wału) umieszczonego wewnątrz korpusu szlifierki poprzez oddzielne przekładnie pasowe. Ściernice osłonięte są osłonami zaopatrzonymi w wymienne i nastawne podpórki do oparcia trzymanych w rękach odlewów.
CHARAKTERYSTYKA TECHNICZNA
| Parametr | Jedn. miary | SZD-400 |
| Ilość stanowisk roboczych | szt. | 2 |
| Średnica zewnętrzna ściernicy | mm | 400 |
| Średnica wewnętrzna ściernicy | mm | 127 |
| Szerokość ściernicy | mm | 50 |
| Prędkość obwodowa ściernicy | m/s | max 50 |
| Ilość obrotów wrzeciona | 1/min | 2391/3064 |
| Moc silnika | kW | 11 |
| Ilość obrotów silnika | 1/min | 2920 |
| Napięcie zasilania | V; Hz | 3 X 400/230; 50 |
| Średnica rurociągu odpylającego | mm | 125 |
| Ilość powietrza odciąganego | m3/h | 2000 |
| Podciśnienie | Pa | 20 |
| Masa | kg | 600 |