KRATY DO WYBIJANIA ODLEWÓW KW

PRZEZNACZENIE
Kraty wstrząsowe KW przeznaczone są do wybijania odlewów z form odlewniczych.
ZASADA DZIAłANIA
Destrukcja formy odlewniczej i wstępne oczyszczanie odlewów z masy następuje wskutek jej dynamicznych zdarzeń z drgającym rusztem kraty wspartym na sprężystych podporach. Drgania rusztu generowane są przez zespół wibratorów bezwładnościowych zabudowany w korpusie kraty i napędzany silnikiem elektrycznym asynchronicznym poprzez wysokopodatne sprzęgło elastyczne.
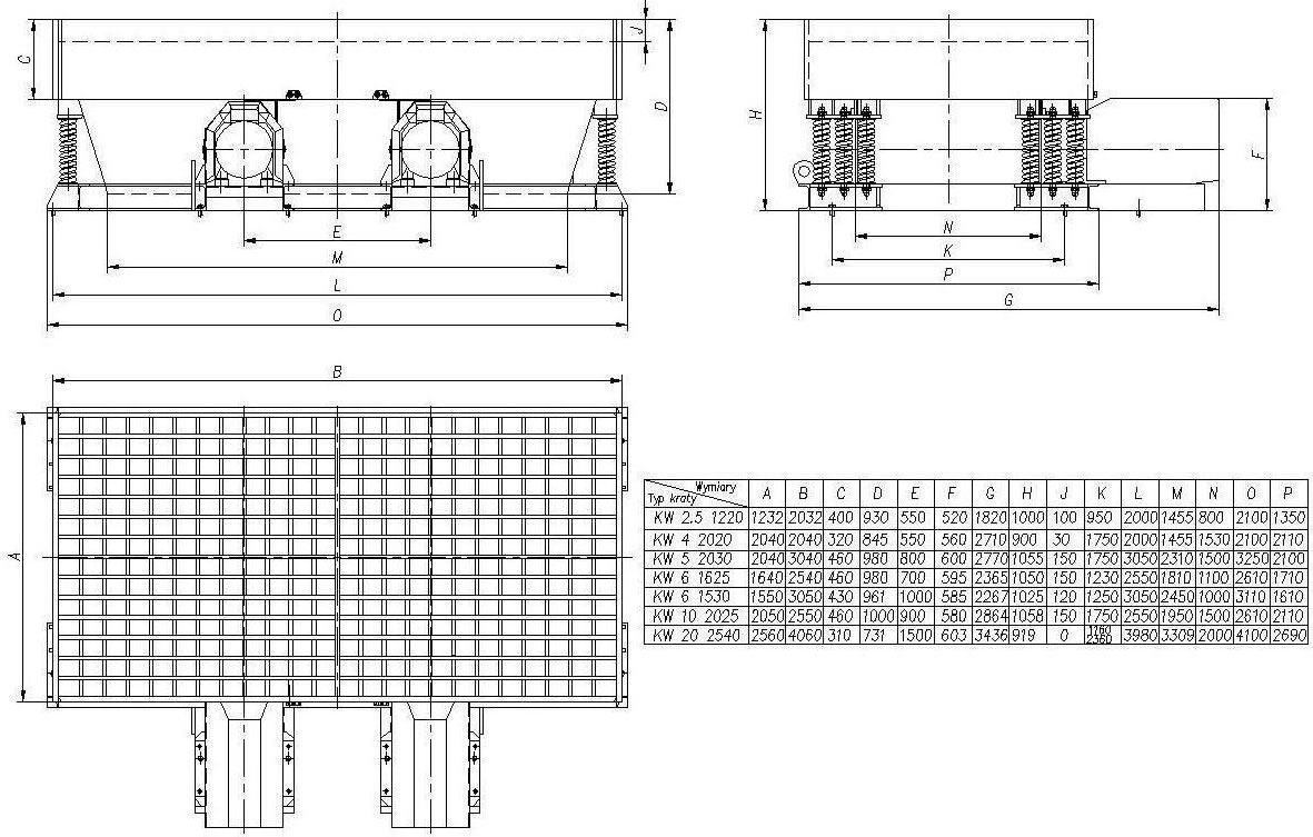
CHARAKTERYSTYKA TECHNICZNA
| Parametr | Jedn. miary | KW 2,5 1016 | KW 2,5 1220 | KW 4 2020 | KW 5 2030 | KW 6 1530 | KW 6 1625 | KW 10 2025 | KW20 2540 | ||
| Nosnik kraty | kg | 2500 | 2500 | 4000 | 5000 | 6000 | 6000 | 10000 | 20000 | ||
| Szerokość użyteczna stołu | mm | 1000 | 1200 | 2000 | 2000 | 1500 | 1600 | 2000 | 2500 | ||
| Długość użyteczna stołu | mm | 1600 | 2000 | 2000 | 3000 | 3000 | 2500 | 2500 | 4000 | ||
| Moc silnika | kW | 2x4,0 | 2x4,0 | 2x7,5 | 2x11 | 2x11,0 | 2x7,5 | 2x15,0 | 2x30,0 | ||
| Prędkość obrotowa silnika | obr./mi. | 970 | |||||||||
| Napięcie zasilania | V | 4x400V; 50Hz; układ sieci- TN-S | |||||||||
| Częstotliwość prądu | Hz | 50 | |||||||||
| Masa całkowita | kg | 2065 | 2800 | 4000 | 6510 | 5400 | 5200 | 6700 | 13700 | ||
W kratach wibracyjnych stacjonarnych typ KW aktualnie produkowanych w KPP FAMO zastosowano nowej konstrukcji mechanizm wibracyjny złożony z układu dwóch tzw „bezzapadkowych” wibratorów montowanych w korpusie kraty.
Bezzapadkowe wibratory pozwoliły na wyeliminowanie elementów często ulegających awariom (zderzaków, zapadek - w dotychczas produkowanych mechanizmach). Wymianie podlegają jedynie łożyska, których wymiana jest bardzo prosta dzięki zastosowaniu wymiennych koszy łożyskowych.
Została zmniejszona częstotliwość drgań do 16 Hz. Zmniejszenie częstotliwości wydłużyło żywotność łożysk, oraz pozwoliło zwiększyć amplitudę drgań. Zwiększenie amplitudy znacznie poprawiło skuteczność wybijania i pozwoliło zmniejszyć całkowity czas procesu.
Kraty wyposażone są w układ elektrycznego hamowania silnikiem co pozwala szybko przejść przez drgania rezonansowe. Układ eliminuje bardzo niebezpieczne drgania o dużej amplitudzie.
Wprowadzono możliwość regulacji siły wymuszającej drgania. Każdy użytkownik może w określonym zakresie ustalić wielkość siły wymuszającej drgania, a co za tym idzie zmienić amplitudę drgań tak, aby proces wybijania przebiegał optymalnie dla jego potrzeb.
Nowe mocowanie sprężyn tzw. bezwkrętkowe wyeliminowało sztywne osadzenie sprężyn na wkrętkach, dzięki czemu uproszczono ich wymianę, oraz zlikwidowano przyczynę pęknięć. Takie rozwiązanie pozwoliło na uzyskanie łagodniejszego rozruchu i hamowania kraty.
Lista referencyjna
Mechanizmy bezzapadkowe opisane wyżej zastosowano między innymi w następujących kratach:
- KW-6/1530 Magnus Nord
- KW-10/2025 Elzamech Elbląg
- KW-20/2540 Małapanew Ozimek
- KW-5/1530 Alutec Stalowa Wola
- KW-2,5/1016 PPUH GICOR II-Odlewnia Żeliwa
- KW-2,5-1220 TGREMIX Oświęcim
- KW-6/1625 Huta Zabrze S.A.
- KW-5/2030 Alstom Power Elbląg
- KW-12,5/2525 Metalodlew Kraków
- KW-10/2035 Huta Stalowa Wola
- KW-20/2535 / Pioma Odlewnia
- KW-10/2025 Alstom Power
- KW-10/1625 i KW10/2030 STA-Odlewnie

